英雄联盟投注app 一层敬父老, 二层留给我方: 这栋考中合院, 藏着三代同堂的体面
发布日期:2026-04-21 03:02 点击次数:54

跟着审好意思与糊口模式的更替,传统的农村自建房正资格着一场从遮风避雨到审好意思抒发的变革。确切理念念的家,不应只是突兀的欧式罗马柱堆砌,而应是扎根于地皮、孕育在当然里的配置。
今天,咱们要共享的一套新考中双层合院决议,大略能为你提供一个完满的范本。它用极简的白墙黛瓦勾画出东方好意思学的神韵,又用相等科学的功能分区,装下了现代家庭对满足糊口的全部念念象。让咱们一王人走进这栋会呼吸的屋子,望望它是何如均衡空间好意思学与实用主见的。

01. 庭院布局:是景不雅,更是糊口
大范例主院: 配置呈L型布局,腾出了南向轩敞的庭院。这里不仅是入户的第一谈局势,更是多功能的户外糊口空间:曝晒农作物、停放车辆、或者是夏夜里全家东谈主的纳凉胜地。
多重小型内院: 在配置北侧和东侧巧妙穿插了多个小庭院。这种筹办竣事了“户户推窗见景”,确保了室内的采光与透风,让整座屋子呼吸起来。

02. 功能布局:以东谈主为本的动线艺术
屋子不单是冰冷的配置,更是糊口的容器。自建房好不好住,要害看里面布局。这套平面决议深度调研了现代农村家庭的酬酢与糊口民风,在动静分区上作念到了教科书级的处理。
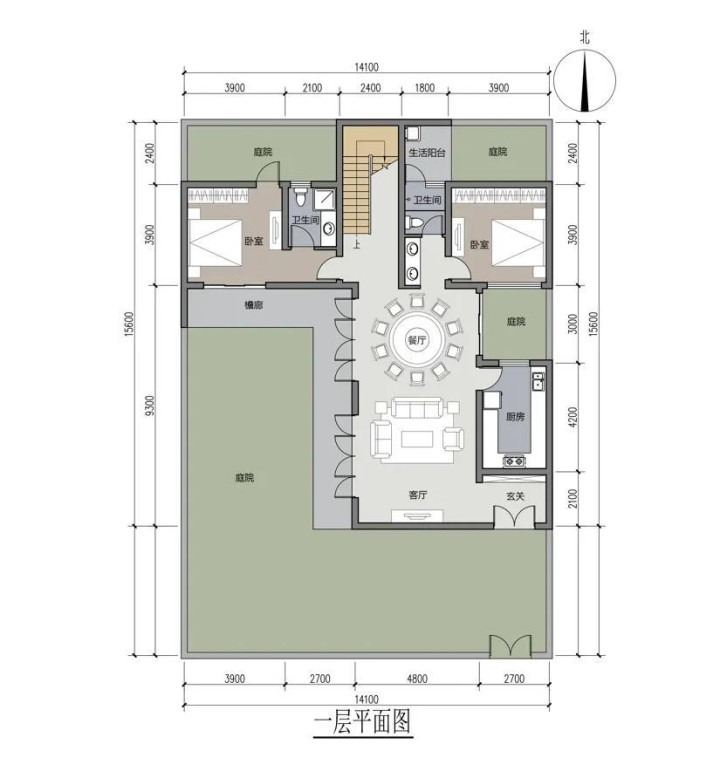
一层:礼节酬酢与烟火气味的共生
一层是所有这个词家庭的“对外窗口”,筹办要点在于空间的通透感与对父老的眷注。
中轴对称的酬酢礼节: 推灵通心的入户大门,玄关四肢缓冲,巧妙地化解了“开门见山”的突兀。室内接受大横厅筹办,客厅与餐厅持之以恒,视野毫无艰苦。这种极具典礼感的中轴布局,不仅让空间显得轩敞派头,更完满契合了农村逢年过节、亲一又邻里团员宴请的大地点。
温情的适老化筹办: 推敲到家中老东谈主的糊口便利,筹办将南向父腐化房安置在了一层西侧。房间内自带颓落卫浴,免去了老东谈主高下楼梯的隐患。更精妙的是,父老房紧邻后院绿植,清早推窗即见绿,午后开门即可在院中散播,这种“接地气”的糊口模式是对晚年最大的慰藉。
洁污分区的餐厨空间: 厨房位于东南角,这种边角化处理竣事了物理层面的餐厨辨别。既保证了备餐动线的流通,又通过颓落的透风筹办,灵验闭幕了考中烹调历程中产生的油烟对居住区、起居室的骚扰,让室内永恒保捏裸露如新。

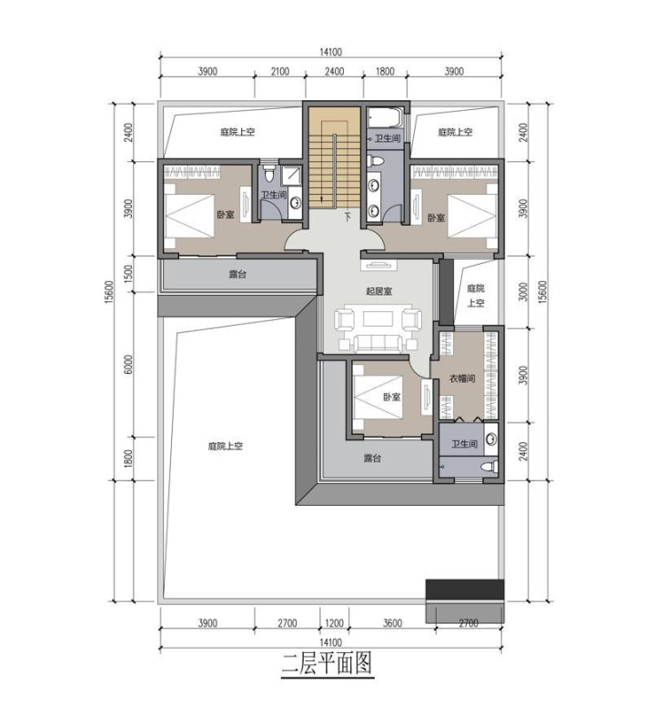
二层:从约会到独处的巧妙进阶
如若说一层是属于大家的,那么二层则是齐全属于家东谈主的巧妙遁迹所。
退台筹办带来的超宽视觉: 二层不仅设有温馨的家庭起居室,最引东谈主注指标莫过于大面积的退台式阳台与超大露台。这不仅是建诞生面档次感的着手,lol投注更是糊口场景的延迟。在这里摆上一套茶具或藤椅,近可鸟瞰自家院落的似锦,远可凭栏遥看村野的四季轮转,竣事了确切的“户内糊口,户外享受”。
双主卧套房的现代叙事: 二层南北两侧分设两间豪华卧室,这种南北对冲的布局极地面栽种了居住的巧妙性。无论是小佳偶回乡小住,依然迎接贵宾,颓落的卫浴空间与步入式衣帽间,都赋予了乡居糊口比好意思城市五星级旅馆的尊玉体验。

03. 实用性能:告别冬冷夏热
好的筹办不单是颜面,更要体目下居住的舒为止上。
全标的采光: 房屋四周及里面天井的筹办,保证了哪怕是昏暗天,室内也能领有饱和的当然清朗,减少照明用电。
坡屋顶上风: 接受传统考中坡屋顶,不仅造型优好意思,更勤劳的是排水性能极佳,且顶层的空气隔热层能灵验缩小夏令的室内温度。
现代建材,古法田地: 外墙接受真石漆或白瓷砖,搭配铝合金仿古门窗,既保留了水墨配置的田地,又惩处了传统木质结构易腐化、难重视的问题。

配置,是东谈主类居住的载体;而院子,则是中国东谈主安放灵魂的归宿。这套新考中合院决议,不单是是砖瓦石块的堆砌,它更像是一份对于理念念糊口的提案。它为家中的父老保留了排闼即见绿的地皮情结,为在外奔走的年青东谈主预留了一处不错停歇、不雅星、放空的巧妙露台,更在方寸之间,将中国传统邻里间的礼序与现代糊口的细巧完满和会。
自建房的意思,从来不在于领域的大小,而在于它是否懂你的糊口。当晨光穿过镂空花窗洒在茶几上,住持东谈主的状态声在轩敞的客餐厅里飘浮,你会发现,这一砖一瓦里,藏着的恰是咱们苦苦寻找的快慰之处。
在这个快节拍的期间,慢下来英雄联盟投注app,回旧地盖一座经得起时分打磨的屋子,让糊口追思本真是神志。
一分彩APP官方网站下载- 上一篇:lol投注app 班师硬刚小米SU7, 未上市订单破6万, 谁能挡住“狂飙”的尚界Z7?
- 下一篇:没有了

备案号: